Размещая котельную у себя в доме, некоторые владельцы пренебрегают требованиями и правилами, что может привести в дальнейшем к катастрофическим последствиям. Во время работы котла в помещении создается разреженное пространство, которое требует достаточного притока свежего воздуха, иначе есть риск возникновения обратной тяги. Сегодня наша цель рассказать вам, как должна производиться вентиляция котельной по СНиПу и показать это на примере.

На фото – схема вентиляции котельного помещения
Зачем это нужно
Не забывайте, что правильно спроектированный воздухообмен в помещении, где установлен котел отопления дома, является обязательным условием его эксплуатации. Если вы станете пренебрегать данным аспектом, концентрация угарных газов в котельной может достичь размеров, угрожающих вашему здоровью, а также всех проживающих в доме. Способы циркуляции воздушных масс в ней могут быть разными и зависят они от типа отопительного оборудования (читайте также статью «Испытание вентиляции: тестируемые величины и нормативные требования»).
СНиП предусматривает систему вентиляции, необходимую для удаления избыточного тепла от оборудования и трубопроводов, а также для поддержания чистоты воздуха в рабочей зоне. Когда это не удается осуществить с помощью естественного движения воздушных потоков, требуется установка устройств, способных принудительно проводить воздухообмен. Цена системы в данном случае увеличится.
Правила котельной вентиляции
Проектируя частный дом, мы обращаем внимание на каждую мелочь, которая может возникнуть в планировке и интерьере каждой комнаты. Именно на этом этапе следует также тщательно разработать помещение для котельной, которая является обязательным элементом.

Вентиляция в котельной с газовым котлом до 350 кВт
Хотя для него не понадобятся какие-то особенные дизайнерские таланты, так как все основные параметры давно регламентированы, вы все равно должны подойти к задаче серьезно. Иначе вы можете подвергнуть себя риску возникновения пожара, не говоря о штрафах от пожарного надзора за нарушения регламента работ.
Виды
Чаще всего в качестве топлива в частных домах используют природный газ, для которого необходим постоянный приток свежего воздуха, способный в достаточной мере утилизировать продукты горения. Для обеспечения нормального воздухообмена обычно хватает естественной вентиляции. В помещении, где установлены старые двери и окна, подсос воздуха осуществляется через различные щели.

Габариты котельной в частном доме не всегда соответствуют нормам
Если же комната более-менее герметичная, рекомендуем использовать дополнительное его вентилирование. Так вы сможете убрать из котельной излишки продуктов горения и остатки несгоревшего газа, следы которых будут четко видны в виде копоти на потолке и стенах. Однако, неэстетичный внешний вид котельной — это самые меньшие проблемы, которые может создавать плохая вентиляция.
| Естественная |
|
| Механическая |
|

Как обустроена приточная вентиляция в котельной частного дома
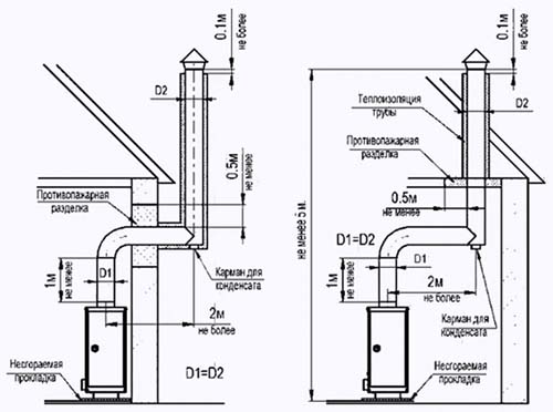
Требования к дымоходам
При обустройстве дымоходов котельных вы должны также придерживаться определенных правил. Их выполнение также очень важно для безопасной работы котла, работающего на газу.
Рассмотрим требования подробнее:
- выбирая диаметр труб необходимо руководствоваться инструкцией к оборудованию;
- не следует поднимать трубы выше конька крыши более чем на 5 м;
- запрещена установка зонтов на дымоходах;
- сечение дымохода следует подбирать в соответствии с определенной моделью котла;

Дымоход для газового котла
- труба должна быть цилиндрической формы и быть изготовленной из металла, необходимо также предусмотреть отверстие для чистки;
- запрещается делать на дымоходе более трех изгибов или поворотов.
Совет: отнеситесь серьезным образом ко всем требованиям по установке дымохода, иначе его неправильная работа может стать причиной трагических последствий.

Металлические двери в котельную с вентиляцией
Как рассчитать вентиляцию котельной частного дома
Воздухообмен в помещении должен соответствовать СНиПу II-35-76.
Он предусматривает такие требования в котельных, где нет постоянного обслуживающего персонала:
- при использовании газового оборудования нужно обеспечить трехкратный обмен воздуха за 1 час работы котла. В этом случае объем воздуха, требующийся для поддержания процесса горения, не учитывается;
- высота котельной должна быть 6 м. Если это сделать невозможно, что чаще всего и получается в условиях частного дома, необходимо увеличить кратность воздухообмена, добавив по 25% на каждый метр снижения данного параметра;
- в случае недостаточного притока воздуха через вентканалы естественным путем, нужно установить принудительную воздухообменную систему.
Данные требования являются общими для котлов, работающих на газу и на твердом топливе. Есть только небольшие различия в местах установки вентиляционной системы.

Вентиляция газовой котельной – подача и вывод воздушных масс
Совет: перед тем как покупать необходимое оборудование и устанавливать воздушные каналы своими руками следует провести расчет основных параметров.
Для бытовых котельных можно упростить расчет, взяв во внимание следующие параметры:
Данные характеристики будут нужны для расчета необходимого диаметра воздушного канала.
Пример:
Соответственно за 1 час при естественной вентиляции должно проходить 3,9х22,5=88 м³ воздуха.
Диаметр канала рассчитывается так:
F = 88 м3 / 3600 = 0,024 м2,
после перевода в площади в диаметр, мы получим цифру 88 мм, ближайшее значение стандартного диаметра трубы – 100 мм.
В этом случае мы узнали вентканал вытяжной вентиляции, приточной должен быть точно таким же.
Вывод
Нельзя игнорировать правила и требования строительных норм при обустройстве котельной в частном доме, где вентиляция играет одну из важнейших ролей. В данной статье мы рассказали об основных из них, а также на примере объяснили, как правильно проводить расчет вентканалов для обеспечения правильного воздухообмена в помещении с котлом, работающем на газе или твердом топливе (см.также статью «Автоматическое управление вентиляцией в помещении»).
Видео в этой статье поможет найти вам дополнительную информацию по этой тематике.