Бурить скважины чаще всего требуется при устройстве скважины на воду, но и кроме того периодически такие работы нужны: установить металлические столбы под забор (беседку, перголу), создать поле для сбора тепла из земли при устройстве теплового насоса земля-воздух, при устройстве столбчатого фундамента и многих других строительных работах. Облегчит и значительно ускорит процессы малогабаритная буровая установка. Имея некоторый навык сварки, ее можно сделать своими руками.

Самодельная буровая установка
Виды самодельных буровых установок
Для самостоятельного бурения скважин (на воду и не только) требуется хоть небольшая буровая установка. Глубина скважин редко бывает меньше 20 метров и без применения хоть простейших механизмов обойтись очень сложно. Если говорить о техниках бурения и типах бутовых установок, то сделать своими руками можно следующие буровые:
- Ударно-канатную установку. Принцип работы этого типа оборудования основан на силе тяжести. На какой-то высоте закрепляют тяжелый буровой снаряд в заточенными краями — стакан или желонку. Его «роняют» несколько десятков раз. Каждый раз снаряд прорезает некоторую часть грунта, а порода застревает внутри полого снаряда (для сыпучих грунтов они снабжаются клапанами). Стакан вынимается из скважины, грунт удаляется. Далее процесс продолжается до тех пор, пока скважина не достигнет требуемой глубины. Для самостоятельного исполнения подобные устройства — самые простые. В наиболее бюджетном варианте это некая станина, позволяющая закрепить блок над скважиной. Через блок перекинут длинный трос с привязанной желонкой. За трос можно дергать «вручную», а можно установить мотор-редуктор с барабаном.

Одна из ударно-бурильных установок
- Шнековая буровая установка. Углубление в грунт происходит при помощи шнека — стержня с наваренными винтом лопастями. Шнеком можно вручную пробурить скважины в пару метров — под свайный фундамент, например. Для прохождения плотных слоев типа глины или плотных песков, требуется солидное усилие. Поэтому требуется двигатель с большим вращающим моментом, а они работают от 380 В. И то, шнековые установки практически бесполезных на каменистых грунтах. И все равно — просто это небольшой камень типа щебня или скальные породы — шнек их не пройдет.

Шнековая буровая установка
- Роторное бурение. Используется тоже принцип вращения, но внутрь бура подается бурильный раствор (вода). Это эффективный способ — вода выносит на поверхность шлам (раздробленную породу), и бур очень редко вынимают на поверхность. Его только сверху постоянно наращивают, устанавливая дополнительные штанги. Есть роторные установки «сухого» бурения — без растворов, но они требуют больших усилий, скорость бурения при этом намного ниже. Поэтому такие установки делают и используют редко.
-

Роторная буровая установка
Выбор типа буровой установки для изготовления ее своими руками зависит от геологии местности, где будут бурить, влияет также глубина залегания водоносных слоев. Наиболее универсальный метод — ударно-канатный. Хорошо проходят разные грунты при помощи роторного оборудования с использованием воды (этот способ называют еще гидробурение). Для разных типов грунтов используют разной формы долота, а измельченный грунт вымывается на поверхность водой.
Самый «капризный» по грунтам шнековый бур, зато он неплохо справляется с вязкими грунтами — глинами, суглинками, но с валунами и каменистым грунтом он застревает.
Методы очистки воды из колодца или скважины описаны тут.
Виды самодельных канатно-ударных бурильных установок
При изготовлении буровой установки под канатно-ударное бурение есть два важных элемента: станина и стакан (патрон, желонка). Для самого простого варианта можно сделать станину из трех-четырех труб, которые соединяются над местом, где будет проходить бурение. Там крепят блок, через него перекидывают гибкий стальной трос. На конце троса привязан бурильный снаряд. Вот и вся конструкция. Приводится в действие эта «установка» мышечной силой — за трос тянут, потом резко опускают. Снаряд понемногу углубляется.

Наиболее простые конструкции
Для снижения физических нагрузок устанавливают лебедку, для еще большей автоматизации — мотор с редуктором, вращающим вал лебедки. При этом важно придумать систему, которая позволит освобождать вал лебедки и сбрасывать желонку.
Рама-тренога не всегда удобна — она требует большой площади. Причем для устойчивости «ноги» должны находится на равном расстоянии от центра. Не помешают также перемычки между всеми опорами. Вот в этом случае буровая установка будет стоять надежно. Есть еще один вариант рамы — в виде буквы «Н» с телескопическими штангами (на фото ниже).

Сделанная своими руками мини буровая установка
Вертикальная стойка тоже телескопическая. Она позволяет менять высоту, с которой сбрасывается снаряд. В остальном комплектация такая же.

Станина для малой буровой установки вид сбоку
Как работает буровая установка ударно-канатного бурения, сделанная своими руками из подручных материалов, смотрите в видео. Такую конструкцию точно повторить несложно.
Подробнее о том, как пробить и обустроить скважину для воды описано тут.
Как сделать установку для роторного бурения
Буровая гидравлическая установка должна иметь станину, которая позволяет передвигать вверх/вниз мотор, к которому через вертлюг подсоединяют бур. Также через вертлюг внутрь колонны поддается вода.

Принципы построения бурилки
При изготовлении буровой установки своими руками, рекомендован такой порядок действий:
- Сначала должны быть вертлюг и штанги. Если вы не квалифицированный токарь или у вас нет такого на примете, то эти детали лучше купить. При их изготовлении требуется высокая точность, что можно достичь при высокой квалификации. Причем резьба на вертлюге и штангах должна быть одинаковой, или потребуется переходник. Резьба на штангах лучше — трапеция, так как потом конусную мало кто из токарей может сделать.
- Купить мотор-редуктор. Если питание будет от 220 в, то характеристики его такие: мощность 2,2 кВт, оборотов — 60-70 в минуту (лучшие : 3МП 31,5 или 3МП 40 или 3МП 50). Более мощные поставить можно только при условии наличия питания в 380 В, да и более мощные редко нужны.
- Покупаете лебедку, может быть ручной или электрической. Грузоподъемность желательно не менее 1 тонны (если есть возможность, лучше — больше).
- Когда все эти составляющие имеются на руках, можно варить каркас и делать бур. Ведь все это оборудование крепится на него, а виды крепления могут быть разными, угадать невозможно.

Самодельная буровая установка
Рама мини-буровой установки состоит из трех частей:
- горизонтальной платформы;
- вертикальной рамы;
- подвижной рамы (каретка), на которой закреплен мотор.
Основа варится из толстостенной трубы — толщина стенки 4 мм, минимум — 3,5 мм. Лучше — из профилированной сечением 40*40 мм, 50*50 мм или около того, но подойдет и круглая. При изготовлении рамы малой буровой установки точность неважна. Важно соблюдать геометрию: вертикальность и горизонтальность, одинаковые углы наклона, если это необходимо. А размеры «подгоняются» по факту. Сначала варится нижняя рама, измеряется. Под имеющиеся размеры изготавливается вертикальная рама, а по ее размерам — каретка.
Простой форты бур можно сделать самостоятельно — их варят из обычной стали (чертеж на фото ниже). Если брать высоколегированную сталь, ее сложно приварить к штангам. Для сложных и каменистых грунтов лучше купить бур в специализированной кампании — они имеют сложную форму, есть много разных видов.

Чертеж бура на 159 мм
Чтобы работать было проще, подключают два пульта с возможностью реверсного хода. Один ставят на мотор, второй на лебедку. Вот, собственно, и все.
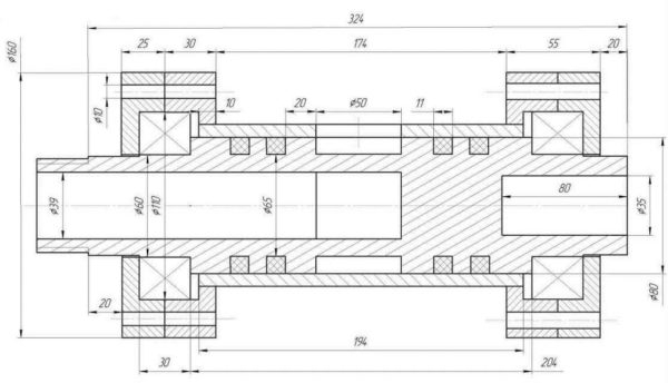
В конструкции буровой установки роторного или шнекового бурения главное — вертлюг, но его изготовить без опыта нереально. Для тех, кто хочет сделать его самостоятельно, выложим фото и его чертеж.

Устройство вертлюга для бутовой установки

Чертеж вертлюга для малогабаритной буровой установки
Как провести воду от скважины к дому читайте тут.
Простейшая установка для шнекового бурения
Если водоносные слои неглубоко, грунты мягкие, можно обойтись механической буровой установкой со шнеком. Это та же тренога или любая другая рама с блоком через который перекинут трос. Только вместо желонки или бурового стакана к тросу привязан шнек. В верхней его части имеется перекладина, при помощи которой его проворачивают.

Ручная буровая установка со шнеком
Для облегчения процесса желательно наличие лебедки или хотя-бы ворота (по типу колодезного). Но можно сделать роторную бурилку, похожую на описанную выше. Изменится только строение вертлюга — он нужен без отвода под подачу воды. Работа одной из бурильных установок, собранной мастеровым человеком своими руками, из подручных материалов — на следующем видео. Можно рассмотреть и особенности конструкции.
И последний момент — видео о том, как сделать шнек для буровой установки своими руками.