
Особой тщательности и ответственности требует устройство канализации в частном доме своими руками. От того, насколько точно соблюдены все условия и установленные правила, зависит степень комфорта при проживании и легкость эксплуатации сооружений (отсутствие постоянно возникающих засоров, промерзания коммуникаций, неприятного запаха и громких звуков в помещении).
Виды канализации
Канализационные системы для загородного дома – это сложные схемы сбора, отведения и очистки сточных вод. Как правило, в доме организуется два типа канализации.
- Хозяйственно-бытовая представляет собой сбор стоков из туалета, ванной, раковины на кухне и водопотребляющей бытовой техники (посудомоечных и стиральных машин).
- Ливневая предназначена для сбора дождевых и талых вод. Она предотвращает подтопление погребов и подвалов, порчу фундамента, появление чрезмерной влажности почвы и загнивание корней культурных растений.
Поскольку в ливневых стоках частного дома отсутствуют нефте- и маслопродукты, допускается объединение ливневой и хозяйственно-бытовой канализаций в одну систему, однако такое решение потребует большего объема приемника (локально-очистной станции, септика или выгребной ямы) и связанных с этим больших расходов на оснащение, поэтому целесообразность подобного совмещения решается каждым домовладельцем индивидуально.
Состав канализационной системы
Любую канализационную систему можно условно разделить на три основные части:
- внутридомовые коммуникации, представляющие собой объединение стоков от каждой точки в единый коллектор,
- наружные (или внешние) трубопроводы, соединяющие место выхода коллектора из дома (в некоторых случаях в трубопровод врезаются отводящие трубы из бани или летнего душа) и приемное устройство,
- собственно приемное устройство.
Приемное устройство может являться накопителем или очищающим сооружением.
- Выгребная яма без дна осуществляет частичную почвенную фильтрацию стоков, однако, живущие в грунте бактерии способны осуществлять переработку включений только в том случае, если количество стоков не превышает одного кубометра в сутки. Так же, как и герметичные модели с дном, требующие откачки содержимого с помощью ассенизаторской машины, такая конструкция больше подходит для дачи, чем для дома с постоянным проживанием.

Накопительный герметичный септик нуждается в регулярной откачке, что приводит к дополнительным расходам
- Готовые септики известных производителей – это тщательно разработанные и проверенные эксплуатацией конструкции, требующие очистки намного реже, чем более простые устройства. Сэкономить средства можно, построив септик своими руками.

Вариант готового септика механической очистки
- Локальные очистные станции (ЛОС) – достаточно дорогие и требующие подключения к электросети сложные устройства, которые в то же время способны удалять из стоков и перерабатывать до 98% примесей, образуя пригодную для полива воду и ил, который можно использовать как органическое экологически безопасное удобрение.

Канализационная система загородного дома на базе аэробной станции глубокой очистки
Выбор места приемника стоков и его параметров
Вне зависимости от типа приемника (перерабатывающее устройство или накопитель), его объем должен быть не менее трех суточных норм потребления воды для всех проживающих в доме. Существующими нормами определено среднее значение на одного человека – 200 литров, исходя из чего объем резервуара рассчитывается как 600 л (200х3), умноженные на число человек. При использовании очистных сооружений с несколькими последовательно соединенными резервуарами, принимается во внимание их суммарный объем.
Место установки приемника определяется с учетом определенных требований.
- Конструкция устанавливается в самом низком месте участка, если последний имеет сложный рельеф.
- Расстояния до важных объектов должно соответствовать принятым нормам:
— до источника питьевой воды – до 50 метров (в зависимости от типа приемного устройства, уровня грунтовых вод),
— до дороги – не менее 5 м,
— до водохранилища или другого открытого водоема – 30 м,
— до жилого дома – 5 м.

Схема расположения канализационного сооружения на участке
Составление схемы
О схеме канализации лучше всего позаботиться на этапе проектирования дома. В это время помещения, имеющие слив воды, стараются разместить в одном секторе таким образом, чтобы уменьшить протяженность труб. Это дает возможность приобретать меньше труб. Кроме того, небольшая протяженность и меньшее количество соединений упрощают схему и снижают вероятность возникновения неполадок в работе.
Для того, чтобы схема канализации в частном доме своими руками составленная, полностью соответствовала требованиям, а при ее разработке не были упущены важные моменты, следует воспользоваться готовым планом дома или нарисовать его на листе миллиметровой бумаги.
- Первым этапом составления схемы является нанесение всех точек слива на план. При наличии более, чем одного этажа, план с расположением сантехнических приборов составляется поэтажно.
- После этого на схему наносится место нахождения общего стояка. Поскольку обычно диаметр отвода унитаза составляет 110 мм и аналогичные параметры имеет стояк, последний располагают чаще всего в туалете. Это позволяет выполнить и еще одно условие – длина отвода от унитаза до коллектора не должна быть более 1000 мм. Рекомендуется по возможности располагать точки слива тем ближе к стояку, чем больше их выпуск.
- На схему наносится линия коллекторного трубопровода до точки выхода из дома, которая на этапе строительства устраивается в фундаменте здания и оснащается защитной гильзой (отрезком трубы, диаметр которой настолько больше диаметра коллектора, чтобы обеспечить его свободный вход и наличие зазоров).
- Рисуются линии подвода стоков от каждой точки слива до коллектора. Расположенные рядом отводы (например, от ванной и раковины для умывания) могут объединяться в одну линию. Исключением является линия слива от унитаза, которая при любых условиях не должна иметь врезок от остальных точек слива.
Важно помнить, что система канализации в частном доме своими руками должна выполняться с определенным уклоном (3% для труб диаметром 50 мм, 2% для труб диаметром 110 мм).
- На схему кроме трубопроводов для транспортировки стоков наносится место установки фановой трубы.
- На план участка аналогичным образом наносится схема внешней канализации с учетом расположения зданий, деревьев (оптимально коммуникации должны проходить на расстоянии не менее 3 метров от них). На каждые 10-15 метров магистрали, а также в местах поворотов и врезки дополнительных линий, устраивается ревизионный колодец.

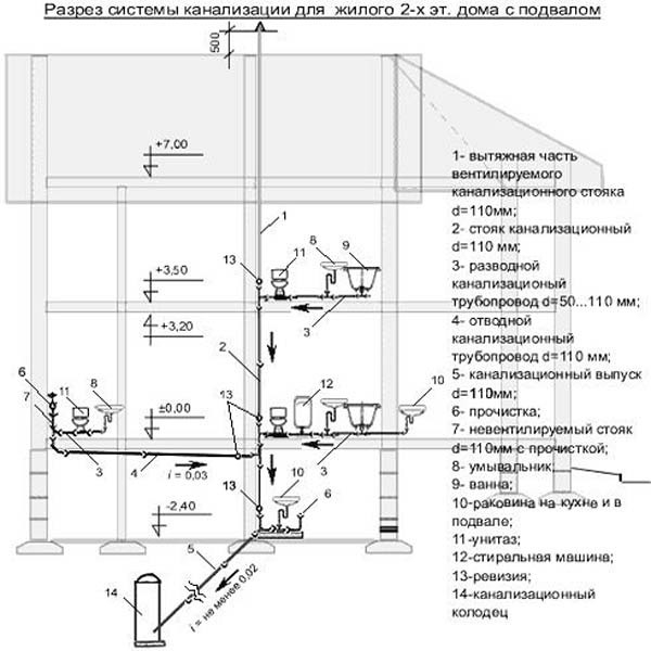
На фото пример составленной схемы канализации для двухэтажного частного дома
Особенности выбора труб и фитингов
Основным аспектом выбора труб является тип материала. Несмотря на прочность чугунных изделий, канализационные системы для частного дома все реже изготавливаются из такого материала из-за их большого веса, затрудняющего транспортировку и монтаж. Предпочтительными являются современные полимерные материалы.
- Гибкий и прочный полипропилен хорошо переносит высокие температуры стоков, поэтому отлично подходит для внутренней канализации. Обычно такие трубы окрашены в серый цвет.
- Поливинилхлорид не столь устойчив к высокотемпературному воздействию, однако обладает высокой прочностью. Оранжевые трубы из этого материала легко заметны в грунте, их используют для внешней канализации, а серые — для внутренней.
Монтаж внутренней канализации
Устройство канализации своими руками в частном доме рекомендуют начать с монтажа внутренней канализации и вентиляции для нее.
Когда организуется канализация своими руками в загородном доме, прокладка труб, в том числе, и стояка, может быть скрытой и открытой. В первом случае коммуникации располагаются в стенах, нишах или коробах. В обязательном порядке должны устраиваться ревизионные люки для возможности осмотра и ремонта. К стенам трубы крепятся при помощи специальных приспособлений (подвесками, хомутами и пр.). При монтаже соблюдаются упомянутые выше принципы выбора параметров элементов системы (трубопроводы 110 мм для коллектора и отвода унитаза, 50 мм – для раковин, душа и ванной, косые тройники и крестовины в местах соединений), однако специалисты рекомендуют также устанавливать коллекторы большего диаметра (100-110 мм) в местах соединения выпусков (например, раковины и ванны).
Стыковка труб, отличающихся по диаметру, осуществляется при помощи переходников. Для каждой точки слива устанавливают гидрозатворы, препятствующие проникновению в помещение неприятных запахов. На протяжении всех коммуникаций внутри дома специальные ревизионные тройники устанавливаются на каждом повороте труб.

Схема прокладки внутренней канализации
Совет: Для уменьшения риска образования засоров рекомендуется при монтаже поворотов использовать не один фитинг 90°, а два по 45° либо три по 30°.
Для тех, кому важно найти максимально полный ответ на вопрос, как провести канализацию в частном доме, полезной будет информация об устройстве вентиляции.
Вентиляция выполняет одновременно две функции – отводит образующиеся газы и обеспечивает приток воздуха, который заполняет зоны разреженности. Последние образуются при интенсивном сливе или подаче воды в канализацию под напором (как правило, это бывает при спуске воды в унитазе или при включении сливного насоса стиральной машины). Своевременное поступление воздуха предотвращает захват воды из сифонов (гидрозатворов), который обычно сопровождается неприятными и достаточно громкими звуками.
Фактически фановая труба является продолжением общего вертикального стояка, который выходит на крышу. Для того, чтобы неприятные запахи не попали в дом, важно следовать следующим правилам при монтаже:
- диаметр фановой трубы должен исключать вероятность перекрытия прохода наледью, образующейся в холодное время года (обычно используют трубы 110 мм),
- высота верхней части трубы на крыше должна быть больше остальных труб (каминных, печных, вентиляционных и пр.),
- от балконов и окон труба должна находиться на минимальном расстоянии в 4 метра,
- запрещается врезка фановой трубы в общий вентканал или вывод ее на чердак.
Сколько стоит провести канализацию в частный дом, зависит от общей протяженности коммуникаций, количества точек слива и вида очистного сооружения, а надежность эксплуатации системы – от того, насколько точно будут соблюдаться требования к монтажу и выбору комплектующих.
Монтаж внешней канализации
Ответ на вопрос, как правильно провести канализацию в частном доме самому, включает в себя не только рекомендации относительно внутренних коммуникаций, но и правила монтажа наружной части трубопровода. Выход коллектора через фундамент дома осуществляется через гильзу диаметром 150-160 мм и снабжается обратным клапаном. Эта мера предотвратит обратный ток отходов при переполнении очистного или накопительного приемника стоков, а также предотвратит попадание грызунов в дом через трубы.
Укладка трубопроводов наружной части канализации осуществляется в траншеи. Оптимально их глубина должна быть больше глубины промерзания грунта. Если следовать этому правилу невозможно, следует позаботиться о теплоизоляции канализационных труб. Перед укладкой трубопровод в траншее устраивается песчаная подушка, а после сборки всей системы полностью, ее опрессовывают чистой водой. Только убедившись в герметичности и отсутствии течей можно зарывать траншеи.
Ревизионные люки устанавливаются:
- в месте соединения внешней и внутренней канализационных систем,
- в месте входа трубопровода в очистное сооружение,
- в месте изменения направления,
- там, где в линию врезается дополнительный сток (например, из бани).

Ревизии на поворотах труб внешней канализации
Важно: На всем протяжении канализационная линия должна иметь уклон 2%.
При соблюдении этих правил проведенная канализация загородного дома своими руками не уступит в надежности и функциональности тем системам, которые строят специализированные компании.
Установка внешних канализационных труб показана на видео.