Водоснабжение частного дома чаще всего делают из колодца и скважины. Для автоматической подачи применяют насосы. Их тип и производительность выбираются в зависимости от расхода воды и того, на какую высоту ее нужно поднимать. Систем частного водоснабжения существует два вида:
- с накопительным баком;
- с гидроаккумулятором.
Для бесперебойного водоснабжение частного дома со стабильным давлением и запасом воды можно поставить и накопительный бак, и гидроаккумулятор. Это — вариант для тех, кто ценит комфорт.
Система с накопительным баком
Основа такой системы — емкость для воды, которая устанавливается на значительной высоте. Если есть место, резервуар ставят на чердаке, если нет — можно построить специальную вышку или установить ее на крыше соседнего сооружения. От емкости по дому расходятся трубы, разводящие воду по точкам потребления.

Система водоснабжения частного дома с накопительным баком (из колодца или скважины — неважно)
Работает эта система так:
- Вода из колодца или скважины насосом подается в емкость, ее уровень контролируется поплавковым механизмом. При достижении порогового значения насос отключается.
- За счет того, что накопительная емкость находится выше всех точек раздачи воды, в системе создается некоторое давление. При открывании крана за счет этого давления вода поступает в точку раздачи.
- При снижении уровня воды в емкости ниже определенной отметки, включается насос, добавляя воду.
Система водоснабжения частного дома или дачи с накопительным резервуаром проста и недорога. Но есть целый ряд серьезных недостатков:
- При такой организации водоснабжения давление в системе низкое, да еще и переменное — зависит от уровня воды в емкости и количества открытых кранов. Из-за этого никакая бытовая техника работать не будет (автоматическая стиральная машина, электрический водонагреватель (бойлер), посудомойка, автономная система отопления и т.д.).
- При отказе автоматики есть реальная угроза затопить дом водой, переливающейся через край. Опасность можно уменьшить, если сделать систему аварийного слива воды. Для этого в накопительную емкость чуть выше требуемого уровня воды приваривают трубу, через которую в случае повышения уровня вытекают излишки. Трубу вывести можно в канализацию или дренажную систему, а можно — в огород. Но нужна какая-то индикация того, что воды в баке слишком много (звук льющейся воды — тоже один из сигналов).
- Емкость имеет солидные размеры, и место для нее найти не всегда легко. Как вариант — построить вышку рядом с домом, на которой расположить бак для воды.
Если на даче никакой техники не предвидеться, использовать можно и такую схему снабжения водой. Но в доме мало кого такой вариант устроит. Нужно будет рассмотреть следующий вариант.
Схема с гидроаккумулятором и насосной станцией
Эта система водоснабжение частного дома из колодца и скважины обеспечивает стабильное давление, потому можно подключать любую технику. В ее основе тоже лежит насос, но подает воду он в гидроаккумулятор, а управляется системой автоматики. Если все эти компоненты объединены в одно устройство — оно называется насосной станцией.

Схема водоснабжения частного дома с гидроаккумулятором
Гидроаккумулятор для водопровода — железный бак, разделенный эластичной мембраной (резиновой) на две части. В одной части закачан под определенным давлением газ, во вторую поступает вода. Заполняя бак вода, растягивает мембрану, сжимая газ еще больше, из-за чего в системе и создается давление.
Принцип работы системы водоснабжения с гидроаккумулятором такой:
- Насос включается, качает воду, создавая заданное давление в системе. Оно контролируется датчиками. Их два: верхнего и нижнего порога давления. При достижении верхнего порога датчик отключает насос.
- При открывании крана или расходе воды техникой происходит постепенное снижение давления в системе. При достижении нижнего порога второй датчик дает команду на включение насоса. Вода подается снова, выравнивая его.
Такая система автономного водоснабжения дает более высокий уровень комфорта. Но для ее организации требуется больше средств: насосная станция и гидроаккумулятор достаточно дорогие устройства. Кроме того, это оборудование более требовательно к качеству воды (минимум примесей) для чего должен стоять хороший фильтр. Есть требования и к трубопроводу (гладкие внутренние стенки) и к производительности насоса: вода должна подаваться постоянно, без перебоев. При использовании в качестве источника воды колодца, он должен иметь хороший дебет (вода должна поступать быстро), что не всегда возможно. Потому такие схемы чаще реализуются со скважинами.
Про то, как собирать скважинный насос, смотрите видео.
Водоснабжение частного дома из колодца и скважины: прокладка труб
Любая из описанных схем водоснабжения частного дома реализуется при помощи насоса, подающего воду к дому. При этом должен быть сооружен трубопровод, соединяющий колодец или скважину с насосной станцией или накопительным баком. Существуют два варианта укладки труб — только для летнего использования или для всесезонного (зимнего).

Участок горизонтальной трубы может находится или ниже глубины промерзания грунта или его нужно утеплять
При устройстве летнего водопровода (для дачи) трубы можно укладывать поверху или в неглубокие канавы. При этом нужно не забыть в самой нижней точке сделать кран — сливать воду перед зимой, чтобы в мороз замерзшая вода не разорвала систему. Или сделать систему разборной — из труб, которые можно скатывать на резьбовых фитингах — а это — трубы ПНД. Тогда осенью все можно разобрать, скрутить и уложить на хранения. Весной все вернуть.
Прокладка труб водоснабжения по участку для зимнего использования требует больших затрат времени, сил и денег. Даже в самые сильные морозы они не должны замерзать. И решений два:
- уложить их ниже глубины промерзания грунта;
- закопать неглубоко, но обязательно обогреть или утеплить (а можно и то, и другое).
Глубокое заложение
Глубоко закапывать водопроводные трубы имеет смысл, если он промерзает не более чем на 1,8 м. Копать придется еще на 20 см глубже, а потом на дно насыпать песок, в который укладывать трубы в защитной оболочке: они будут подвергаться солидной нагрузке, ведь сверху почти двухметровый слой грунта. Раньше в качестве защитной оболочки использовали асбестовые трубы. Сегодня есть еще пластиковый гофорорукав. Он дешевле и легче, проще укладывать в него трубы и придавать нужную форму.

При укладке трубопровода ниже глубины промерзания приходится копать глубокую траншею длинной на всю трассу. Зато водоснабжение частного дома из колодца и скважины не будет замеразть зимой
Хоть подобный метод требует больших затрат труда, его используют, потому что он надежен. Во всяком случае, участок водопровода между колодцем или скважиной и домом стараются уложить именно ниже глубины промерзания. Трубу выводят через стенку колодца ниже глубины промерзания грунта и в траншее ведут под дом, там поднимают выше. Самое проблемное место — выход из земли в дом, можно дополнительно подогревать электрическим греющим кабелем. Он работает в автоматическом режиме поддерживая заданную температуру нагрева — работает только в том случае, если температура ниже заданной.
При использовании в качестве источника воды скважины и насосной станции, устанавливают кессон. Его закапывают ниже глубины промерзания грунта, в нем же ставят оборудование — насосную станцию. Обсадную трубу обрезают так, чтобы она была выше дна кессона, и трубопровод выводят через стенку кессона, тоже ниже глубины промерзания.

Прокладка труб водоснабжения в частном доме из скважины при устройстве кессона
Закопанный в земле водопровод сложно ремонтировать: придется окапывать. Потому постарайтесь заложить цельную трубу без стыков и сварных швов: именно они дают больше всего проблем.
Близко к поверхности
При неглубоком заложении земляных работ меньше, но в этом случае имеет смысл сделать полноценную трассу: траншею выложить кирпичом, тонкими бетонными плитами и т.п. На этапе строительства затраты значительные, но эксплуатация удобная, ремонт и модернизация — без проблем.
В этом случае трубы водоснабжения частного дома из колодца и скважины поднимаются до уровня траншеи и там выводятся. Укладываются они в теплоизоляции, предотвращающей их замерзание. Для страховки их можно еще и греть — использовать греющие кабели.
Один практический совет: если от погружного или скважинного насоса к дому идет кабель электропитания, его можно упрятать в защитную оболочку из ПВХ или др. материала, а потом прикрепить к трубе. Крепят через каждый метр куском скотча. Так вы будете уверены, что электрическая часть у вас в безопасности, кабель не перетрется и не порвется: при подвижках грунта нагрузка будет на трубе, а не на кабеле.
Герметизация входа в колодец
При организации водоснабжение частного дома из колодца своими руками, обратите внимание на заделку места выхода водопроводной трубы из шахты. Именно отсюда чаще всего грязная верховодка попадает внутрь.

Важно выход водопроводной трубы их шахты колодца хорошо загерметизировать
Если отверстие в стенке шахты ненамного больше диаметра трубы, щель можно заделать герметиком. Если зазор большой, его замазывают раствором, а после высыхания промазывают гидроизолирующим составом (битумной пропиткой, например или составом на основе цемента). Промазать желательно и снаружи и изнутри.
Из чего состоит
Источник воды и ввод его в дом — далеко не вся система водоснабжения. Нужны еще фильтры. Первая, грубая фильтрация происходит еще в точке всасывания. В таком виде ее можно использовать для технических целей, например, завести в туалет. Но даже для полива неочищенную воду можно подавать далеко не в каждом случае, а в душ или на кухню — тем более. Потому водоснабжение частного дома из колодца и скважины включает в себя еще и систему фильтров.

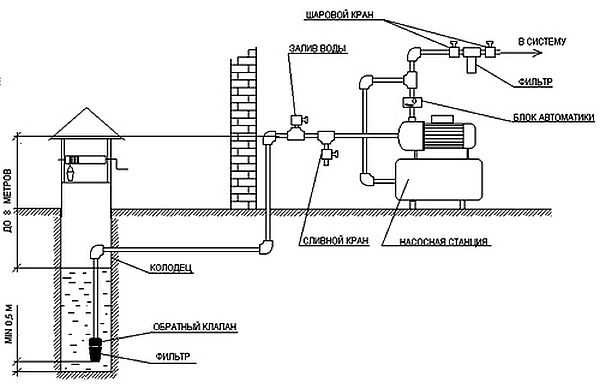
План водоснабжения частного дома из колодца
Обратите внимание: на рисунке есть три ступени фильтрации:
- на всасывающей трубе — сетчатый фильтр;
- перед входом в насос — фильтр грубой очистки;
- перед подачей в дом — фильтр тонкой очистки.
На каждой из ступеней фильтр (или фильтры) подбирается в зависимости от воды. Ее качество определяется в лаборатории. На основании химического состава и подбирается оборудование для очистки.
Автономное водоснабжение
Всем хороши системы с насосными станциями, кроме того момента, что для их работы требуется электричество. Запас воды есть, но он равен объему гидроаккумулятора, а он не больше 100 литров. Такого количества надолго не хватит. Если вам нужен резервный запас хотя-бы на день или больше, лучше всего закачивать воду сначала в накопительный бак, а из него подавать на вход насосной станции. Такая же система хорошо работает и в случае, если ваш дом подключен к централизованному водопроводу, но в нем давление очень низкое или вода подается по часам.

Как собрать автономное водоснабжение частного дома своими руками
В представленной на фото схеме нет только аварийного перелива. Это трубопровод, выходящий из накопительного бака чуть выше максимального уровня воды. Он выводится в канализацию. По нему стекают излишки воды в случае неполадок с поплавковым механизмом. Если его не установить, можно залить дом.
Если вам необходимо резервное водоснабжение частного дома на случай отключения электроэнергии, накопитель нужно устанавливать наверху, выше всех точек водоразбора. Тогда при отключении электрики вода будет в трубы подаваться самотеком. Душ вы принять не сможете, но в кранах она будет. Это будет бесперебойное водоснабжение частного дома в любых условиях.