Не самые удачные квартиры в домах постройки времен Хрущева: очень маленькие площади и неидеальная планировка. В те времена решалась задача — обеспечить каждую семью отдельной жилплощадью, а на комфортность проживания никто особого внимания не обращал. Чем они хороши, так это тем, что перепланировка хрущевки особых трудностей не вызывает: несущие стены, как правило, только наружные, все остальные — это перегородки. Их можно сносить или перемещать без риска для несущей способности всего здания. Но это не значит, что работы по ремонту можно начинать без проекта и согласования. Любые изменения подлежат регистрации.
Что такое перепланировка и как ее оформить
Перепланировкой считается любое изменение конфигурации перегородок в квартире. В несущих стенах что-либо менять без предварительной оценки ущерба и определения мер по его устранению запрещено категорически. В случае с ненагруженными стенами или перегородками все не так категорично, хотя предлагается сначала составить проект, потом его согласовать и только после этого приступать к реализации задумок.
Стоит знать, что есть несколько недопустимых переделок, которые вам не согласуют никогда:
- Расширение площади «мокрых помещений» — кухни, ванной и туалета — разрешено только за счет технических помещений. Над жилыми их располагать нельзя. То есть можно забрать часть коридора, встроенного шкафа, прихожей. В связи с этим могут возникнуть спорные моменты насчет некоторых типов перепланировок. В частности на фото ниже указана такая спорная зона.

Спорная зона при расширении площади санузла
Выделенный красным фрагмент фактически находится в коридоре, но по документами БТИ это жилая площадь. И если в таком виде подать перепланировку, ее не примут. Чтобы обойти эту преграду сначаластавят перегородку, отгораживающую коридор, оформляют эту перепланировку, потом подают проект с увеличенной площадью ванной.
- При расширении площади кухни это нельзя делать:
- за счет площади санузла;
- если расширение происходит за счет площади жилой комнаты, нельзя на ней устанавливать сантехническое и кухонное оборудование (мойка и плита);
- если кухня оборудована газовой плитой, объединение ее с жилой комнатой запрещается.
Менять газовую плиту на электрическую — не всегда хороший выход, но обойти последний пункт можно и по-другому: поставив раздвижные двери или «гармошку».
Перепланировка однокомнатной хрущевки
Однокомнатные квартиры покупают в основном молодые люди. В этом случае возможный вариант перепланировки однокомнатной хрущевки — преобразование ее в квартиру студию. Обычно убирают все перегородки между комнатой и кухней, часто сносят еще перегородку, отделяющую прихожую.

Вариант перепланировки однушки в квартиру-студию
Что в любом случае остается неизменным — это местоположение санузлов: какой-либо перенос этих помещений в многоквартирных домах запрещен (за исключением первых этажей).
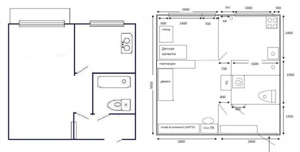
На фото выше перепланировка коснулась и санузла, но при этом своего местоположения он не поменял. Изменились размеры — увеличилась площадь за счет переноса двух стен: немного вперед вынесена та, которая обращена в комнату, и ближе ко входной двери перенесена боковая. Это дало возможность установить стиральную машину. С ней часто в малогабаритных квартирах бывают сложности. Прихожая в этом варианте небольшая, но зато в комнате можно выделить место под гардеробную.
Об оформлении квартиры-студии подробно прочесть можно тут.
Еще один вариант перепланировки 1-комнатной хрущевки представлен на следующем фото. В этом случае объединили коридор и кухню, двери в комнату перенесли дальше от входа, благодаря чему функциональность помещения значительно повысилась. Также появилась возможность выделить место под просторный встроенный шкаф в коридоре. Функциональность кухни не пострадала, ее площадь в результате разрушения перегородки даже слегка увеличилась — на 0,2 квадрата.

Перепланировка 1 комнатной хрущевки
Применен тут еще один распространенный в последние годы способ увеличения жилой площади — утепление балконов и лоджий. При достаточном уровне утепления и организации отопления там поддерживается комфортная температура. При этом убирать без особых сложностей можно ту часть стены, которая раньше была под окном. Остальную стену трогать нельзя. В данном случае на утепленной лоджии организован кабинет.

Планировка хрущевки: 1 комната
Рассмотрите еще такой вариант перепланировки однокомнатной хрущевки, которые строили в кирпичном доме. Тут другие площади, балкон вместо лоджии, очень маленькие санузел и небольшая кухня, но перегородки стоят также, как и в предыдущем случае.
За счет использования угловой душевой кабины и отказа от ванной, удалось оптимизировать расположение сантехники так, что образовалось место под стиральную машину. При этом стенка сделана скошенной, что дало увеличение площади кухни. Правда прихожая в таком варианте совсем небольшая, но зато кухня стала почти на метр (0,7 квадрата) больше.
Жилая площадь увеличена за счет утепления балкона, туда перенесен рабочий стол и шкаф. Особенность этой перепланировки в том, что заказчику требовалось на такой небольшой площади иметь 5 спальных мест: для 3 детей и 2 для взрослых. Как видите на фото все они имеются: одна кровать детская двухэтажная.

Еще один вариант перепланировки
Иногда предыдущая идея, что называется, «не греет». Отсутствие стен у кухни не все воспринимают нормально, пусть даже нет перегородки с прихожей, а не с комнатой… В следующем варианте перепланировка хрущевки производилась за счет переноса перегородок. Передвинута боковая стена прихожей — сдвинута в сторону комнаты. В то же время лицевая стенка прихожей подвинута почти вплотную к двери в санузел. В результате увеличена площадь прихожей, в ней появилось место под встроенный шкаф или гардеробную.
Чтобы компенсировать уменьшение площади комнаты, уменьшена площадь кухни. Но она почти не потеряла функционала, так как из-за переноса простенка ближе к двери ванной появилось место под установку холодильника. Такая перепланировка хрущевки привела к тому, что столовая зона перенесена в комнату, а распашные двери заменены на сдвижные или «гармошку».
При этом комната имеет Г-образный вид, а это дает возможность поставить перегородку, которая будет отделять «детскую спальню» от «гостиной-столовой». Этот же вариант подходит тем, кто из однокомнатной квартиры хочет сделать двухкомнатную. Часто такую переделку хрущевки затевают пары с маленьким ребенком.Еще один вариант переделки 1-комнатной квартиры в 2-х комнатную, при другой исходной планировке.

Из однушки сделать двушку
Это самый простой способ — поставить перегородку из гипсокартона. Занимать на должна не более половины просвета, чтобы во второй половине все-таки было естественное освещение.

Однушку в двушку
Еще один пример того, как можно угловую однокомнатную «хрущебу» превратить в квартиру студию с выделенной спальней. В спальне, конечно никаких лишних предметов быть не может, только кровать и шкаф. Зато она изолирована.
Еще несколько вариантов переделки однокомнатных квартир вы найдете в этой статье.
Переделка хрущевки двушки
Двухкомнатных хрущевок в домах этих лет большинство. Недостатки у них такие-же, как и у однокомнатных: маленькие площади и неудобная планировка, проходные помещения. Тем не менее, большинство проблем можно решить переносом некоторых стен. Например, смежные комнаты можно разделить, а попутно из двухкомнатной сделать трехкомнатную.

Переделка хрущевки: из «трамвайчика» делаем две раздельные комнаты
Ставим дополнительную перегородку, отделяющую комнату от коридора. Таким образом получается довольно обширное по размерам помещение, которое можно использовать как кладовку, а можно превратить в гардеробную. Второе помещение — длинное и узкое — разбивается на две зоны: спальню и гостиную при помощи легкой перегородки из гипсокартона или другого листового материала.
На фото ниже — другой тип проходных комнат в двушке: — чтобы попасть во вторую комнату, первую нужно пересечь от одной стены до другой. Крайне неудачная планировка в том плане, что функциональность первого помещение очень низкая: выпадает «мертвая» зона прохода. А так как часто в торце второй комнаты сделана кладовка, то и она не может использоваться полностью.

Еще вариант переделки двухкомнатной квартиры в трехкомнатную
По предложенному варианту переделки форма ванной за счет переноса стены становится прямоугольной, прихожая объединяется с первой комнатой. Ее используют как гостиную, из которой сделан вход в кухню. Дальнее помещение разбито на две небольшие спальни. Обратите внимание на перегородку между двумя спальнями — она нелинейная, чтобы была возможность устроить небольшую гардеробную в обоих комнатах.

Перепланировка хрущевки: 2 комнаты
Можно обычную двухкомнатную квартиру в панельной хрущевке превратить в современную квартиру-студию с объединенной гостиной-кухней. Основная задача при такой перепланировке — добиться разрешения перенести входные двери. При этом бывшая прихожая превращается в гардеробную. Кухня и гостиная объединяются за счет частично снесенной перегородки, также объединяется санузел.
При желании вторую комнату можно разбить на две при помощи легкой перегородки, которая отделяет спальню рабочей зоны или кабинета. Чтобы зонирование было более полным но при этом в спальне был доступ солнечного света, перегородку можно делать не на всю высоту, а примерно на 1,5 метра.

Интересный вариант перепланировки угловой двушки
Очень эффектно решен вопрос переделки двушки в этом варианте переделки. Фактически она стала трешкой. За счет того, что прихожая скошена, увеличена площадь санузла. Перегородка, отделяющая кухню от комнаты частично разобрана. Вторая комната разделена на две части, площадь второй увелисена за счет кладовки и стенного шкафа. Получилось две отдельных спальни, причем за счет того что квартира угловая, окна есть в обеих.
Коридор имеет необычную форму — его стены расположены по диагонали. Функциональность его небольшая, но и площадь тоже. А в остальном очень хороший вариант.
Несколько вариантов ремонта однокомнатных квартир с использованием описанных приемов можно посмотреть тут. А ремонт двухкомнатных (с реальными фото) описаны в этой статье.
Перепланировка 3 х комнатной хрущевки
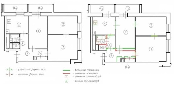
Переделка трехкомнатной квартиры в хрущевке серии II-57.3.2. Самое худшее в этом варианте — мизерные размеры туалета и ванной. В основном для того чтобы исправить ситуацию и затевался ремонт. Для перепланировки убрали простенки между туалетом и ванной, примыкающую часть коридора отгородили стеной, в которой сделали двери. Так как в зоне, где ранее был коридор, гидроизоляция перекрытия хуже, требуются в этой зоне дополнительные меры.

Перепланировка трехкомнатной хрущевки: фото до и после
Второе слабое место первоначальной планировки: некуда шкаф поставить. В занятом под ванную отрезке коридора был небольшой стенной шкаф, но он был очень мал. В связи с этим было принято решение перенести стену одной из спален, а на освободившемся месте сделать гардероб.
Чтобы объединить кухню и гостиную, была разрушена часть стены. Согласно проекта, необходимо было произвести усиление прилегающих несущих стен и перекрытия. Так как плита на кухне — газовая, необходимы двери. Были поставлены раздвижные.
Следующий вариант ремонта затевался с целью увеличить площадь санузлов, а также превратить одну из комнат в гостиную-столовую, с выходом в кухню. Попутно требуется получить две спальни.

Перепланировка 3 х комнатной квартиры хрущевки
Были разобраны простенки между туалетом и ванной, часть коридора отходит к санузлу. Для организации нормального пространства прихожей немного сдвигается стена одой из комнат. В кухню делают вход со стороны гостиной, на противоположной стене сделан вход во вторую спальню, а дверной блок, который ранее вел во вторую спальню демонтирован, проем заделан. Об оформлении арок читаем тут.

Переделка планировки: до и после
Еще один вариант. Главная задача, которую решает перепланировка хрущевки — увеличение площади кухни и санузла. Решение для санузла традиционное — убрали простенки, также выровняли выровняли стену. Маленькая кухня объединена со столовой. В ей даже нашлось место для группы отдыха — дивана и телевизора.
Решенная еще одна задача: проходные комнаты разделены. Произошло это за счет уменьшения площади, но помещения стали более функциональными, а в выгороженных площадях сделаны две гардеробные комнаты.
Если вы задумались о том, чтобы убрать перегородку между кухней и комнатой, об оформлении совмещенной кухни и гостиной можно прочесть тут.
Переделка 4 х комнатной хрущевки
При увеличении количества комнат в квартирах этой планировки, недостатки только усугубляются: маленькие санузел и кухня больше не становится, комнаты часто — проходные. Один из самых неудачных вариантов на фото ниже. Это то, что было «ДО» того.

Перепланировка 4 х комнатной хрущевки: фото «до»
В этой квартире относительно большая по площади прихожая, но она малофункциональна. Единственный угол с приличными стенками занят кладовкой. Все остальные стены использовать проблематично: в прихожую выходит 7 дверей.

Перепланировка 4 х комнатной хрущевки: фото «после»
В предложенном варианте комнаты имеют более правильную форму — ближе к квадрату, что проще использовать. Осталось две обособленных спальни, а две комнаты превращены в столовую и гостиную. Из прихожей вход в выгороженную гардеробную комнату.
Санузел остался раздельным, площадь ванной увеличена за счет спрямления стены. Часть, которая ранее относилась к коридору также требует усиления гидроизоляции.