Канализация и водопровод считаются одними из основных систем коммуникаций в доме. При этом для их создания необходимо учитывать массу разных факторов, которые соответствуют конструкции здания, расположению точек потребления и выбранными материалами. Именно поэтому проект канализации в частном доме делать нужно особенно тщательно, учитывая все особенности.

Любительские фото поэтапного процесса изготовления септика из бетона для отвода канализации
Поэтапный процесс
Разрабатывая канализацию для дома нужно сразу учитывать и расположение точек водоснабжения. При этом профессиональные мастера рекомендуют наносить на план обе эти системы, чтобы не только получить общее представление о конечном изделии, но и проверять правильность своих расчетов. Учитывая это, проект водоснабжения и канализации частного дома делается одновременно.

Профессиональный проект расположения канализационных систем на участке
Ввод и разводка
- Именно точка ввода в дом является отправным пунктом при создании подобной документации. Поэтому с нее следует начинать всю разработку.

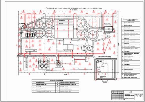
Простейшая графическая схема установки данных систем в доме в несколько этажей
- Чтобы создать чертеж водопровода, достаточно от данной точки провести на плане здания линии, которые будут отображать трубы. При этом их подводят к точкам потребления с указанием мест разветвления.
- Также на проекте отображают расположение всех запорных вентилей или заглушек. Некоторые специалисты предпочитают сразу отмечать на плане марки фурнитуры и ее диаметр. Это очень удобно, если планируется делать переходы.

Практически все основные элементы систем коммуникаций располагаются в подвальном помещении или цокольном этаже, в месте ввода в дом
- Вначале всей разводки некоторые проекты предполагают установку водомеров. При этом инструкция по монтажу настоятельно рекомендует производить монтаж обратных клапанов и фильтров.
- На вводе канализационной трубы специалисты рекомендуют монтировать колено со смотровым люком. При этом намного лучше, если оно будет оборудовано ловушкой. Такой проект наружной канализации позволит производить прочистку всей системы при ее засорении.

Благодаря специальным компьютерным программам можно получать объемные модели расположения всех систем коммуникаций внутри дома
- Также такие смотровые лючки устанавливают и на местах резких поворотов. Это значительно упростит эксплуатацию.
Совет! Профессиональные мастера рекомендуют для создания таких проектов обращаться к специалистам, поскольку они могут содержать массу различных элементов, которые обязательно вызовут трудности при самостоятельном изготовлении.

В некоторых типах проектов может разобраться только специалист, а порой именно тот человек, который и занимался разработкой
Наружные системы
Если проект водопровода и канализации разрабатывается с учетом наличия городской магистрали, то после ввода в дом все трубы сводятся к основному колодцу, где они подключаются к системе. При этом обязательно установить еще один смотровой люк на слив и кран на воду.

Простейшее графическое изображение септика с системами внутренней развязки
Если планируется изготовить проект ливневой канализации, то ее обычно делают отдельно от основного слива. При этом на вводе в общую систему обязательно нужно установить колено, которое создаст гидравлический клапан.
Проекты без наличия центральных систем коммуникаций имеют серьезные отличия. Обычно канализация заканчивается в выгребной яме или септике. Поэтому на плане важно отобразить все соединительные элементы и правильный угол наклона.

Схема размещения и подключения водопровода из скважины и канализации к септику
Когда разрабатывается проект подвода воды без центральной магистрали, то обычно предполагается, что будет присутствовать скважина. Этому элементу системы необходимо уделить повышенное внимание, поскольку потребуется обозначить установку насоса, фильтров и других компонентов.

Использование нескольких канализационных систем на одном участке осуществляется посредством слива в один септик, но на разных уровнях
Если документация изготавливается своими руками, то очень важно отметить на ней уровень залегания труб. Профессиональные мастера рекомендуют располагать его ниже отметки промерзания грунта с установкой дополнительного утепления. Это делается для того, чтобы система правильно функционировала в зимний период времени.
Совет! Существуют специальные программы, которые разработаны для того, чтобы самостоятельно рассчитывать все необходимые параметры при составлении проекта. Они значительно облегчают работу, но это не означает, что ими можно пользоваться без определенных навыков.

Графический проект с указанием необходимых размеров, поворотных систем и углов наклона
Рекомендации специалистов
- Необходимо сказать о том, что цена некоторых элементов системы довольно высока. Поэтому неправильно созданный проект обязательно приведет к перерасходу и дополнительным затратам.

Ввод канализации в емкость для сбора отходов производится также ниже уровня промерзания грунта
- При выполнении подобной работы могут помочь специальные справочники и различная нормативная документация. Однако порой дельный совет специалиста окажет намного больше пользы.
- После того, как проект готов нужно создать опись всех используемых при монтаже материалов, начиная от труб и заканчивая системами крепления. Это очень сильно поможет при закупке и даст полное представление о конструкции в целом.

Весь монтаж необходимо производить в точном соответствии с проектом, не внося в него свои изменения или дополнения, если только это не согласовано с проектировщиком
Вывод
Ознакомившись с видео в этой статье можно получить подробную информацию о том, как создаются такие проекты и что нужно знать. Также принимая во внимание текст, приведенный выше, следует сделать вывод о том, что данная работа связана с массой различных трудностей, которые необходимо учитывать (см.также статью «Проектирование канализации – основные особенности данного вида работ»).
При этом можно отметить, что проект канализации и водоснабжения квартиры имеет определенные отличия от того, который используется для частных домовладений. Особенно если там используется септик и скважина.