Микроклимат в любом помещении – некий оптимальный набор параметров, при которых человек чувствует себя комфортно и может продуктивно работать. На это влияют главным образом такие параметры как: влажность, температура воздуха, состав воздуха. А выполнения основной части задачи по поддержанию стабильности микроклимата лежит на вентиляционной и отопительной системах, поэтому вопросу проектирования стоит уделить особое внимание.

Схема вентиляции и отопления жилища
Имеет ли смысл совмещать отопительную и вентиляционную системы?
Большинство людей в нашей стране привыкли к традиционному водяному отоплению, а вопрос совмещения вентиляции и отопления даже не рассматривают всерьез, а зря. Ведь проектирование системы вентиляции и отопления как единого целого позволит по максимуму использовать возможности воздуховодов, они не будут простаивать в холодной время года.
К тому же, воздушная система отопления имеет ряд преимуществ перед традиционной, где в качестве теплоносителя используется вода.
Использование воздуха в качестве теплоносителя позволяет:
- продлить срок службы системы (долговечность воздушной отопительной системы достигает до 40 лет);
- сократить время прогрева помещения;
Обратите внимание!
В случае с водяной системой нужно дождаться пока радиатор отдаст достаточное количество тепла, это занимает часы.
Воздушная система поставляет в комнату уже подогретый воздух, нужно только подождать пока он смешается с холодным воздухом. На это уйдет всего лишь 20 – 30 минут.

Сравнение видов отопительных систем
Общие положения о проектировании систем вентиляции и кондиционирования
Независимо от того выполняется проектирование систем отопления-вентиляции-кондиционирования небольшого особняка или высотного здания, результатом выполненной работы должны стать 2 документа:
- текстовая часть – в пояснительной записке проектировщик указывает общие технические решения, принятые в проекте. В частности, расчетом обосновывается принятое сечение воздуховодов, мощность системы кондиционирования и нагревательных установок. Если система будет устанавливаться на промпредприятии, то нужно указать и способы защиты воздуховодов от агрессивных сред;
- графическая часть – чертежи должны содержать схему сетей отопления, кондиционирования и вентиляции. В случае совмещения вентиляции и воздушного отопления работа немного упрощается.

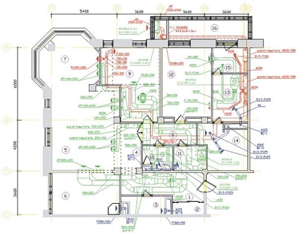
Вентиляция этажа коттеджа
В отношении чертежей отметить нужно, что выполняться они должны в строгом соответствии с ГОСТом 21.602-79, простой набросок от руки на миллиметровке неприемлем.
Обратите внимание!
Если выполняется проектирование вентиляции и отопления небольшого домика своими руками , то, конечно, можно обойтись и без ГОСТа, главное, чтобы работникам было все понятно.
В остальных случаях – четкое следование нормативу обязательно.
Правила оформления чертежей
Чертеж должен содержать не только схематическое изображение самой проектируемой системы, но и план дома, иначе невозможно будет оценить правильно ли проложен, например, воздуховод.
Что касается проектирования систем для многоэтажных домов, то в общем случае необходимо:
- вычертить на листе А1 план здания по этажам;
- пронумеровать помещения, при этом нумерация производится согласно требованиям ГОСТ 21.602-2003, который был принят взамен еще советского нормативного документа ГОСТ 21.602-79. Что касается нумерации помещений, то число должно размещаться в кружке, нумерация ведется начиная с левой части чертежа, при этом первое число используется для обозначения номера этажа, а все остальные – это, собственно, номера помещений;
- затем на этом же плане нужно в обязательном порядке нанести размеры ограждающих конструкций, это является основой для последующего подсчета теплопотерь;
- если будет использоваться водяное отопление, то выбирается место для размещения узла, на каждом этаже указывается разводка труб и указываются места расположения радиаторов;
Обратите внимание!
ГОСТ на рабочие чертежи отопления и вентиляция дает четкий перечень допустимых условных обозначений.
Творчество в этом вопросе недопустимо, а примеры некоторых обозначений будут рассмотрены ниже.
- то же касается отображения на листах воздуховодов и системы кондиционирования помещений.
Принятые условные обозначения на чертежах
В общем случае проектирование вентиляционной системы начинается с того, что на этажах обозначается их проектное положение. После этого обязательно нужно дать разрезы по всем помещениям, где предусмотрена вентиляция.
На этих разрезах нужно показать проектное положение вентрешеток (указывается высота их размещения и размеры), кроме этого нужно отобразить:
- вентканалы и шахту (показываются пунктиром);
- обязательно указывается отметка устья вентиляционной шахты и центра окна;
- выполненные разрезы и поэтажные планы здания служат в качестве основы для вычерчивания аксонометрической проекции системы вентиляции.

Аксонометрическая проекция вентиляции на этаже
Обратите внимание!
Та же инструкция действует и при проектировании воздушных отопительных систем, совмещенных с системой вентилирования помещений.
При создании чертежей действуют такие правила:
- любой элемент вентиляционной и отопительной системы обязательно маркируется и проставляется его порядковый номер (в пределах одной марки). Например, приточная система с естественной циркуляцией обозначается как ПЕ, с принудительной – П, воздушная завеса на чертеже обозначается буквой У, а отопительные агрегаты можно идентифицировать по букве А.

Технологическая схема вентсистемы
ГОСТ оформление чертежей отопление и вентиляция не ограничивается одним только документом 2003 года.
Маркировка некоторых элементов вентиляционной и отопительной систем приведены в отдельных нормативах:
- при обозначении на листе воздуховодов и фасонных элементов следует придерживаться рекомендаций ГОСТ 21.206-93;
- ГОСТ 21.205-93 следует использовать, когда необходимо на чертеже отобразить такой элемент как изоляцию трубопровода, амортизационную вставку, опору и прочие специфические элементы. Этот же норматив используется для обозначения направления воздушного потока, баков, трубопроводной арматуры и т. д;

Примеры условных обозначений
- ГОСТ 21.112-93 посвящен условным обозначениям подъемно-транспортного оборудования.
Обратите внимание!
При изображении на чертеже условных обозначений этого типа, нужно учитывать масштаб.
Общее руководство по проектированию
Вентиляционная система, совмещенная с отопительной работает по такому принципу:
- теплый воздух подается через подающий воздуховод в комнаты дома;
- через вытяжной трубопровод воздух из помещений забирается, выполняется подмес свежего воздуха с улицы, и воздушная смесь подается обратно в нагревательный блок;
- после этого процесс повторяется.
Обратите внимание!
Подобные системы обязательно оборудуются системой фильтров, часто встречается функция дополнительного увлажнения.
Циркулирующий воздух нуждается в дополнительной очистке, ведь он не полностью заменяется свежим.

Фильтр – обязательный элемент каждой вентсистемы
В частном строительстве в каждом случае проектирование отопления вентиляции и кондиционирования индивидуально, но можно сформулировать несколько универсальных правил:
- подающий воздуховод удобно размещать между этажами. Особенно такой вариант подходит для каркасной технологии строительства, трубы не займут ни единого сантиметра свободной площади комнаты. При таком размещении на 2 этаже теплый воздух будет поступать от уровня пола, а на 1 – с потолка;
Обратите внимание!
Нужно учитывать, что из подающих решеток будет поступать теплый воздух, поэтому нежелательно размещать их прямо над диваном, креслом и т.д.
В то же время нежелательно их размещение над шторами – вряд ли кому-нибудь будет приятно смотреть на постоянно колышущиеся занавески.
- если перекрытия железобетонные, то лучше воздуховоды разместить в углах у стен. Потом их легко можно будет замаскировать с помощью многоуровневого потолка.

3D модель воздуховода, подающего теплый воздух
Есть некоторые особенности и в отношении размещения обратки – вытяжного воздуховода.
Так, правильное проектирование систем отопления и вентиляции требует, чтобы:
- воздух попадал в вытяжной трубопровод на нижнем этаже – у уровня пола. Дело в том, что здесь нагретый воздух попадает в помещения сверху, поэтому забор его у пола способствует более равномерному прогреву помещения;

Воздуховод для забора остывшего воздуха
- на 2-м и последующих этажах забор должен производиться у потолка – теплый воздух поднимается вверх и скапливается в этой зоне, что для человека не играет никакой роли;
- именно на этом воздуховоде имеет смысл разместить заслонку для регулирования воздушного потока, в зимнее время это поможет сэкономить на счетах за электроэнергию;
- особое внимание нужно уделить шумоизоляции воздуховодов на участках, прилегающих к нагревательной установке. Возможно, имеет смысл на этих участках использовать гибкие воздуховоды или применить наружную шумоизоляцию;
- в летнее время отопления работать не будет, поэтому вытяжная вентиляция должна иметь выход крышу, в теплое время года через него будет удаляться загрязненный воздух;
- подмес свежего воздуха с улицы может выполняться через стеновые клапаны.

Так выглядит система в целом
Отдельно нужно упомянуть об источнике тепла. Конечно, можно использовать установки, работающие от электричества, но такие системы сложно назвать экономичными, да и для загородных домов зависимость от электричества – не лучший вариант.

На фото – вентиляционный блок
Поэтому часто используются установки, в которых нагревательный элемент подключается к обычному отопительному котлу (электрическому или твердотопливному – значения не имеет). Цена эксплуатации таких системы примерно на 20-30% ниже в сравнении с обычным водяным отоплением.
Обратите внимание!
Помимо этого, котел может одновременно использоваться для горячего водопровода и, например, «теплых полов».

Водяной котел используется не только для обогрева жилья
Простой расчет воздушной отопительной системы, совмещенной с приточной вентиляцией
Здесь, конечно, многое зависит от способа организации циркуляции воздуха. Если, например, используется только частичная рециркуляция, то это позволит немного сэкономить на электричестве, ведь нагревательному прибору не придется тратить энергию на подогрев воздуха с температурой, равной уличной.
С другой стороны, вариант с частичной рециркуляцией не всегда приемлем чисто с гигиенической точки зрения, ведь часть загрязненного воздуха все равно останется в помещении. Но нулевая рециркуляция, особенно в холодное время года, обойдется владельцам недешево, зато воздух будет гарантированно будет чистым.
Расчет воздушного отопления совмещенного с вентиляцией выполняется исходя из того, что в помещении должна поддерживаться заданная температура воздуха. От этого не должен страдать приток, то есть кратность замены воздуха в комнате должна быть также величиной постоянной.

Приток воздуха должен быть примерно равным вытяжке
В качестве образца приведен весьма упрощенный вариант расчета, но он подойдет, например, для частного строительства.
Весь расчет можно разделить на 3 несложных этапа:

Основные источники потерь тепла
Обратите внимание!
От правильности выполнения этого пункта будет зависеть способность отопительного прибора поддерживать нужную температуру в квартире.
Если, например, результат окажется заниженным, то нагреватель просто не справится и о комфорте можно будет забыть.
G=Qп/[с∙(tг-tв)],
в этой формуле приняты такие обозначения:
- Qп – теплопотери, подсчитаны на предыдущем этапе, Вт;
- с – теплоемкость воздуха, Дж/(кг∙К), справочная величина, принимается равной 1005;
- tг и tв – температура из отопительного прибора и температура в комнате, ᵒС.
Qн=G∙c∙(tв-tн),
где tн – наружная температура воздуха, ᵒС.
Пример расчета
В качестве примера выполним простой расчет в котором стоит задача выполнить расчет отопления и вентиляции, при условии их совместной работы.
Приняты такие исходные данные:
- в комнате установлены двойные стеклопакеты, а площадь остекления в процентном соотношении составляет 20% от площади стены;
- принята наружная температура -30ᵒС;
- в комнате только одна стена выходит наружу;
- площадь помещения – 20 м2;
- в доме должна постоянно поддерживать температура на уровне +20 ᵒС, температура подачи +50 ᵒС;
Расчет выполняем по рекомендованной методике:
- теплопотери для такого случая составят 2,26 кВт;
- расход воздуха для такого случая должен составлять G = 2260/(1005(50-20)) = 0,075 кг/с;
- тепла на подогрев понадобится Qн = 0,075∙1005∙(20-(-30)) = 3769 Вт = 3,77 кВт. Уже опираясь на эти данные можно подбирать отопительный прибор по паспортным характеристикам.
Подведение итогов
Проектирование вентиляционной системы только на первый взгляд может показаться простым – уложить пару труб, да вывести их на крышу. На самом же деле все намного сложнее, а в случае, когда вентиляция совмещена с воздушным отоплением, сложность задачи только возрастает, ведь нужно обеспечить не только отвод грязного воздуха, но и добиться стабильной температуры в комнатах.
Видео в этой статье носит теоретический характер, в нем специалисты дают ответы на ряд общих вопросов.