Эффективная вентиляция необходима каждому зданию, будь то промышленный комплекс, загородный коттедж или квартира в многоэтажном доме. Предварительное составление проекта позволит вам избежать совершения возможных инженерных ошибок в процессе выполнения монтажных работ, провести их более экономно и качественно. В данной статье мы рассмотрим главные принципы проектирования вентиляционных систем.

Схема вытяжной вентиляции загородного коттеджа
Общие положения
Зачем вообще осуществляется проветривание зданий? Давайте разберёмся с этим вопросом более подробно, чтобы в полной мере ощутить значимость полноценной вентиляционной системы:
Назначение

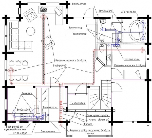
Движение воздуха в квартире
Если этого не делать, то в замкнутом помещении накапливаются:
- углекислый газ, являющийся продуктов дыхания человека;
- угарный газ, исходящий от приборов отопления и печки и представляющий наибольшую угрозу здоровью жильцов; (См. также статью Гофра для вентиляции: особенности.)

Последствия отравления угарным газом
- неприятные запахи, которые чаще всего исходят из туалета и сопровождают процесс готовки;
- пыль, болезнетворные микроорганизмы и возможные выделения предметов интерьера.
Воздух с таким составом неприятен и даже опасен для употребления человеческим организмом, что может привести к возникновению множества заболеваний.

Последствия некачественной вентиляции в доме
Совет: кроме обустройства вентиляционной системы в местах образования плесени рекомендуется наносить специальные антисептики.
Это значительно увеличит эффективность решения проблемы.
Виды
Можно выделить два основных варианта реализации вентиляции в частном доме или квартире:
| Название | Описание |
| Естественная | Осуществляется за счёт перепадов температур и давления снаружи и внутри здания. В этом случае имеет очень большое значение проектировка оптимальных размеров и расположения вентиляционных каналов. |
| Принудительная | Это естественная, которая усиливается за счёт использования вентиляторов, фильтров и обогревающих устройств. Здесь очень важна электрическая схема приточно-вытяжной вентиляции. |

Фото оборудования, осуществляющего принудительную вентиляцию
Для небольших квартир обычно вполне достаточно естественной системы, вытяжки которой располагаются в туалете ванной и, конечно же, на кухне. А вот для просторного частного дома, имеющего более одного этажа нужна более сложная организация вентиляции с предварительным проектированием. (СМ. также статью Вентиляция крыши: особенности.)
Составление проекта

Графически оформленный проект приточно-вытяжной вентиляции
Проектирование можно выполнить своими руками или позволить это сделать специалистам. В любом случае стоит ознакомиться с основными принципами выполнения такой задачи.
Совет: рекомендуется осуществить проект системы вентиляции ещё до начала строительства дома.
Это позволит вам добиться большей эффективности и вписать вентиляционные каналы в дизайн помещений, что будет выглядеть более эстетично, чем их маскировка в уже возведённом здании.
Техническое задание
Проектирование приточно-вытяжной вентиляции начинается с составления технического задания, в котором необходимо учесть:
- количество всех комнат;
- площадь каждого помещения;
- архитектуру всего здания;
- функции, выполняемые каждой комнатой;
- количество и местонахождение всех дополнительных объектов, которые оказывают существенное влияние на движение воздушных масс: санузлы, кондиционеры, печи, камины и другие подобные инженерные конструкции.

Обязательно учитывайте камин при размещении вытяжных отверстий
Проведение расчётов
Теперь давайте рассмотрим, как рассчитать приточно-вытяжную вентиляцию. Для этого нам понадобиться найти приемлемую мощность системы, измеряемую пропускаемым через неё количеством кубометров воздуха в час, для каждого помещения в отдельности и всего здания в целом.
Зависит же данный показатель от двух следующих параметров:
L=n×V, где
L – требуемый мощностной показатель, n – нормированная кратность воздухообмена, V – объём комнаты.
Для примера возьмём гостиную площадью 6 на 4 м и высотой потолков 2,5 м: 1×60=60 м3/ч.

Гостиная комната площадью 24 м2
L=N×LN, где
L – требуемый мощностной показатель, N – наибольшее количество людей, которые могут одновременно располагаться в помещении, LN – нормированное потреблении воздуха одним человеком в зависимости от функциональности комнаты. Согласно СНиПу последний параметр может принимать такие значения:
| Вид помещения | Нормативное потребление воздуха в проветриваемой зоне | Нормативное потребление воздуха в непроветриваемой зоне |
| Производственное | 30 | 60 |
| Муниципальное | 40 | 60 |
| Жилое | 30 | 60 |
То есть, если взять проветриваемую гостиную в доме, где проживает 3 человека, то получим: 3×30=90 м3/ч. Так как это значение превышает, то которое мы вывели в предыдущем примере, используя кратность воздухообмена, то его и берём за основное для дальнейших расчётов.
Проведя все необходимые вычисления, обычно выходит, что:

Вытяжное отверстие в квартире

Приточно-вытяжная вентиляция загородного коттеджа

Заводская вентиляционная система
Особенности проектирования вентиляции для помещений, площадь которых превышает 1000 м2
Чем сложнее проект и чем большее количество узлов он включает, тем выше его цена. Это следует учитывать при его заказе у специалистов.
Также нужно позаботиться о наличии таких элементов, как:

Венткамера частного дома

Звукоизоляция вентиляционного канала – залог хорошего сна

Проточная вентиляция с водяным калорифером
Заключение
Мы рассмотрели, как рассчитать вытяжную вентиляцию, а также особенности её проектирования. Её мощность измеряется в количестве пропускаемых кубометров воздуха за один час, на которое влияет функциональное назначение помещения и максимальное количество людей, находящихся одновременно в комнате.
Некоторые расчёты вполне можно провести самостоятельно, но для зданий с большими площадями лучше заручиться помощью профессионалов, так как допущенные по неопытности ошибки могут обойтись в последствие гораздо дороже оплаты за их работу.

Составление проекта вентиляционной системы загородного коттеджа
Видео в этой статье ознакомит вас с дополнительным количеством материалов, которые имеют непосредственное отношение к изложенной теме.Предварительное проектирование поможет вам создать более эффективную вентиляцию.