Неотъемлемая часть вентиляционной системы – решетки. Отличающиеся по форме, размеру, использованному материалу, цвету, они выполняют общую функцию – вентилируют помещение. Утилитарное значение этой детали сочетается с красивым внешним видом. Современные вентиляционные решетки органично вписываются в любой дизайн, сохраняя при этом свое прямое предназначение.

Пластиковые решетки
Аксиома вентиляционного успеха
Такая деталь, как вентиляционная пластиковая решетка просто обязана присутствовать в каждой вентиляционной системе. Поэтому давать советы по части покупать эту вещь или нет – глупо. Но проблема (причем приятная) выбора этого аксессуара остается. Главное, знать, что именно вам нужно.
Оказывается, для вентиляции разных мест в доме нужны только оригинальные детали. Приточная вентиляция, например, отличается от переточной. А удобство инерционной не сравнимо с нерегулируемой.

Прямоугольные решетки придают воздуховоду изящество и легкость
Только системный подход к проблеме поможет выбрать необходимую деталь. Она должна отвечать всем нормам, вносить лепту в создание комфорта и быть выдержанной в стиле вашего жилища.
На первый взгляд
Вентиляционные решетки ПВХ могут устанавливаться как в самом помещении, так и снаружи.
В зависимости от этого различают:
- наружные – располагаются с легким уклоном в сторону улицы и препятствуют попаданию снега/дождя, пуха, насекомых, грызунов внутрь комнаты. Производятся в основном из металла ввиду больших нагрузок (порывы ветра, град), но есть и пластиковые образцы. Наклон жалюзи жестко зафиксирован;

Наружная пластиковая решетка
- внутренние – устанавливаются на стенах, потолках и полах в комнатах, имеют различный дизайн и цветовое оформление. Отсутствие каких бы то ни было значительных нагрузок позволяет изготавливать их из пластика. Могут иметь сменную центральную часть. Благодаря подвижным жалюзи, которые располагаются в один-два ряда, изменяют направление и силу воздушных потоков. Каждый ряд может двигаться по-своему – вверх-вниз либо слева-направо;

На фото видны шнуры, регулирующие положение ламелей
- переточные (толщина стенки 50 мм) пластиковые вентиляционные прямоугольные решетки, располагаясь в стенах или нижней части дверного полотна с двух сторон, позволяют воздуху циркулировать по всем комнатам. V-образный рисунок жалюзи асиметричен и не имеет прямых просветов, обеспечивая свето- и звуконепроницаемость помещений.

Сквозь такую решетку пройдет только воздух
Разновидность внутренних ПВХ решеток включает в себя:
- анемостаты – круглые декоративные, устанавливаемые в санузлах и ванных;

Анемостат вытяжной
- диффузоры, распределяющие потоки воздуха: потолочные по периметру, вихревые по кругу;

Универсальный диффузор
- радиаторные;

Решетка и радиатор составляют единую систему
- накладные (возможна установка снаружи).
В зависимости от места прокладки воздуховода решетки делят на половые, стенные и потолочные. Неуязвимость материала к плесени и грибковым поражениям выгодно отличают его от прочих. Материал настолько легок, что, например, пластиковая вентиляционная решетка 600х600 в системе подвесных потолков пользуется успехом. А простой процесс монтажа гораздо дешевле по сравнению с алюминием.

Потолочная решетка
Решетки воздуховодов изготавливаются из пластика, металла и дерева. Каждый материал сам по себе хорош. Высокая цена и кропотливый уход за капризными деревянными аксессуарами не придают им популярности. Но, как говорится, на любителя.
Пластик отличается легкостью, достаточной прочностью и экологичностью. Легок в монтаже, не деформируется и прост в уходе. Но в процессе эксплуатации довольно быстро обесцвечивается и не годится для решеток больших размеров.
Формы и размеры вентиляционных пластиковых решеток не ограничены строгими рамками. Всегда есть выбор круглых, квадратных, прямоугольных и треугольных изделий. А параметры могут варьироваться от минимальных 100х100 до 600х1800 мм в модульном исполнении.
Что скрывается за решеткой
Внешний осмотр изделия нуждается в дополнительной информации о том, как это работает, из чего состоит. На основе полученных знаний можно определяться с окончательным выбором.
Итак, по месторасположению пластиковых вентрешеток можно определить их вид:
- вытяжные (наружные);
- приточно-вытяжные и переточные (внутренние).
Конструктивные особенности позволяют выделить следующие группы:
- регулируемые, имеющие подвижные горизонтальные/вертикальные жалюзи. Уменьшая или увеличивая зазоры между ними, контролируется интенсивность воздушной струи и ее направление;

На фото хорошо видны 2 ряда жалюзи
- нерегулируемые, которые не имеют ламелей (декоративные) и поэтому не способны влиять на воздушный поток;
- инерционные (гравитационные) работают на удаление грязного воздуха. Вентиляционный вход перекрывается ими под действием силы тяжести.

Устройство гравитационной решетки
Усилить качество естественной вентиляции поможет пластиковая вентиляционная решетка с обратным клапаном. Он представляет собой оцинкованный цилиндр с двумя лепестками или полукружьями, которые подвижно закреплены на центральной оси.
Вторым необходимым элементом будет вентилятор. Когда он включается, подвижные элементы клапана складываются вовнутрь вентиляционной трубы, пропуская воздух. После окончания принудительной вентиляции лепестки раскладываются, закрывая воздуховод.
Вентилятор размещается непосредственно в проеме воздуховода. Управление вентилятора можно подключить к выключателю освещения. Тогда проветривание будет проходить одновременно с приготовлением пищи или купанием.

Обратите внимание на положение клапана при разном токе воздуха
Таким образом, посторонние запахи из общей вентиляционной системы не проникают в вашу квартиру. Принудительная вентиляция рекомендуется для курительных мест, санузла, кухни, где присутствуют сильные запахи.
Обратите внимание!
Обратный клапан вентиляции бесполезен в местах с естественной вентиляцией, потому что сила воздушной струи в этом случае слабая.
Клапан или лепестки не смогут сложиться и пропустить воздух из комнаты.
Вентилятор будет тем кнутом, который приведет систему в действие.
Процесс монтажа
Сборка вентиляционной системы – прерогатива профессионалов. Но поставить точку и провести монтаж своими руками вам по силам. Крепится деталь на монтажную рамку, пружинные зажимы или саморезами через уже готовые отверстия.

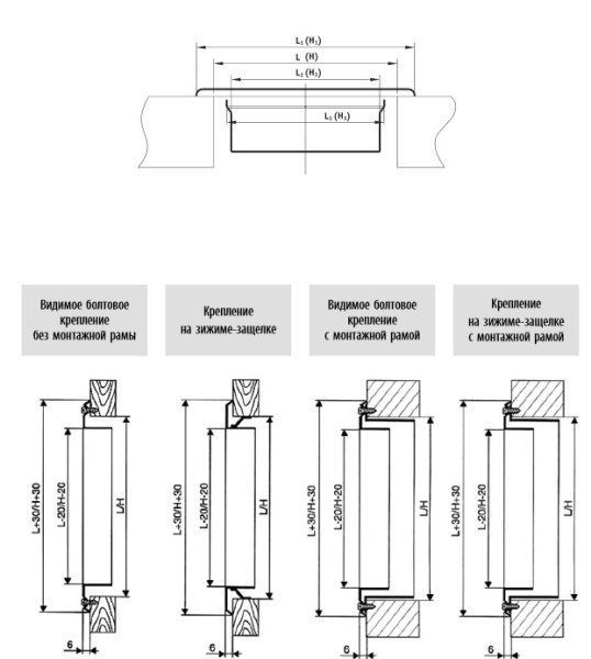
Способы крепления решеток
Деревянные, гипсокартонные и простые оштукатуренные стены позволяют работать шурупами, вся работа сводится к 2 операциям:

Монтаж на саморезах
Обратите внимание!
Узор на выбранной вами покупке не должен мешать вентилированию.
Помните, что каждая лишняя преграда усиливает сопротивление и снижает эффективность вентиляционного процесса.
Инструкция при посадке решетки на клей выглядит следующим образом:
Обратите внимание!
Не пользуйтесь горячей водой на время приклеивания.
К сырой поверхности кафеля не пристанет никакой клей и, соответственно, вентиляционная пластмассовая решетка тоже.
Подведение итогов
Вентиляционные решетки как часть вентсистемы имеют большое значение. Они обеспечивают помещение свежим воздухом и удаляют отработанный, способствуют быстрой очистке воздуха при задымлении и защищают от непрошенных маленьких гостей. А учитывая привлекательный внешний вид, они станут еще и украшением вашего жилья.
На видео в этой статье показан пример установки вентрешетки.